Projektentwicklung DHH

Projektname
Projektentwicklung DHH
Standort
München-Blumenau, Levkojenstraße
Projektart
Entwicklung einer Doppelhaushälfte
Leistung
Projektentwicklung
Projektkonzept
Helle Wohnräume

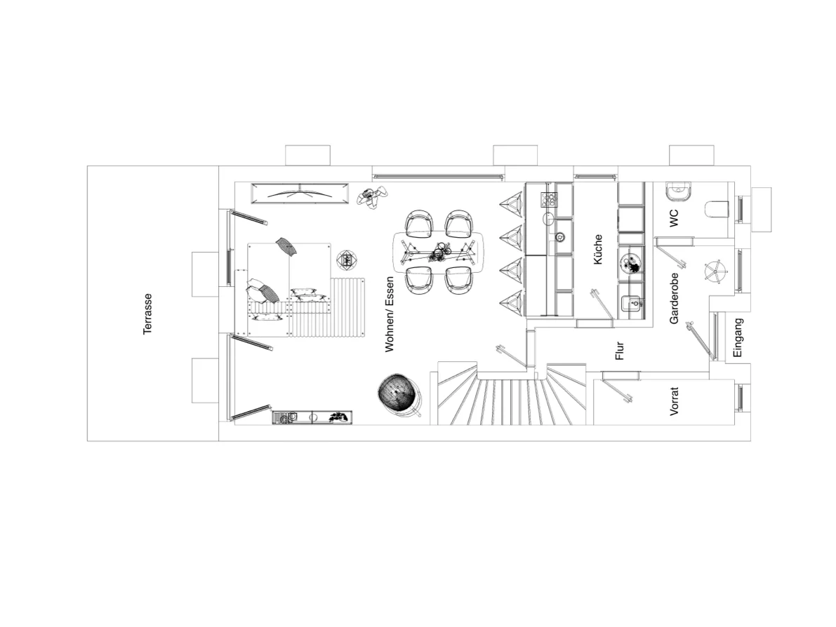
Moderne Doppelhaushälfte in München-Blumenau

In der Levkojenstraße in München-Blumenau entsteht im Rahmen unserer Projektentwicklung eine attraktive Doppelhaushälfte mit durchdachtem Wohnkonzept. Helle Räume, intelligente Grundrisse und eine hochwertige Ausstattung schaffen ein Zuhause, das sich flexibel an unterschiedliche Lebensphasen und Bedürfnisse anpasst.